Welkom, bij Dr. van Rhijnstraat 12
2351 AV, Leiderdorp
€450.000 K.K.








































Wat maakt deze woning uniek?
In één van de mooiste straatjes van de oude Kerkwijk staat dit charmante 3 kamer tussenhuisje te koop. De Dr. Van Rhijnstraat ademt historie: een rustige, gezellige straat met karakteristieke gevels en een warme buurt sfeer. Je woont hier op een ideale plek, vlak bij de winkels van Leiderdorp én op korte afstand van het bruisende centrum van Leiden. Alles wat je nodig hebt ligt binnen handbereik, terwijl je toch volop geniet van rust en knusheid.
Wij noemen dit niet zomaar "een huisje om blij van te worden". Nostalgie, sfeer, bijna 80m2 woonopp
Samengevat
Type
House
Bouwjaar
1915
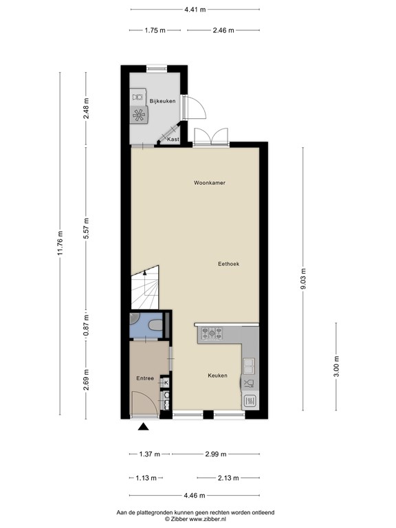
Wonen
77 m²
Perceel
85 m²
Kamers
3
Slaapkamers
2
Bekijk alle kenmerken van deze woning
Overdracht
Vraagprijs€450.000 K.K.
Vraagprijs per m²€5.844,16
StatusOnder bod
AanvaardingIn overleg
Bouwjaar
Soort woningEengezinswoning, Tussenwoning
Bouwjaar1915
Aangeboden sinds13-11-2025
Waar kom ik straks te wonen?
Loading Map…
Hoe duurzaam is deze woning?
Deze woning heeft energielabel: C
Woningen met een energielabel C zijn in de meestal geïsoleerd, maar het kan beter. Controleer ook gelijk of de beglazing gemoderniseerd kan worden. Zijn deze punten al opgepakt? Dan is het raadzaam om te onderzoeken of duurzame energiebronnen zoals zonnepanelen geplaatst kunnen worden.
Type isolatieinsulationType.FloorInsulation, insulationType.LargelyDoubleGlazing, HR-glas
VerwarmingsinstallatieBoiler, Gedeeltelijk vloerverwarming
Warm waterBoiler
Energielabel geldig tot09-11-2035
Hoe werkt het verkoopproces?
Stap 1: de woning bekijken
Al geïnteresseerd in deze woning? Plan direct een bezichtiging via de onderstaande knop.
Plan een bezichtigingBestudeer de stukken
Plaats een bod
Right of award
Vrijgave Biedlogboek
Stap 2: de stukken bestuderen
Voorafgaand aan de bezichtiging is het aan te raden om alle stukken goed te bestuderen als onderdeel van de onderzoeksplicht.

Stap 3: een bod uitbrengen
Is dit de volgende droomwoning? Breng dan eenvoudig digitaal een bod uit in het Biedlogboek van Eerlijk Bieden

Veelgestelde vragen
Wanneer kan de notariële overdracht van Dr. van Rhijnstraat 12 plaatsvinden?
De verkopers van Dr. van Rhijnstraat 12 hebben de volgende voorkeur voor notariële overdracht aangegeven: 2026-03-16t00:00:00.000z.
Is er parkeergelegenheid in de buurt van Dr. van Rhijnstraat 12?
In de buurt van Dr. van Rhijnstraat 12 zijn de volgende parkeermogelijkheden beschikbaar: Publicparking.
Contact met de makelaar

Obèr Makelaardij
Vragen aan de makelaar over dit pand of wilt u direct een bezichtiging plannen? Gebruik dan het bijgevoegde contactformulier.
Hoe kunnen wij u van dienst zijn?
Misschien vindt u deze woningen ook interessant?

Hondsdijk
2396 HK Koudekerk aan den Rijn
€785.000 K.K.

Meidoornstraat
2351 NH Leiderdorp
€550.000 K.K.

Hoofdstraat
2351 AM Leiderdorp
€695.000 K.K.

